Unsere Immobilien

Wir helfen Ihnen dabei, die Immobilie zu finden, die zu Ihren Ansprüchen und in Ihren finanziellen Rahmen passt. In unserem Immobilienportfolio finden Sie bereits eine interessante Auswahl an zum Verkauf stehenden Immobilien, bei denen bereits ein aussagekräftiges Exposé vorhanden ist.

Nicht die richtige Immobilie dabei? Jetzt Suchauftrag hinterlegen und künftig kostenfrei passende Immobilien vor Marktstart erhalten!

Suchprofil anlegen

Objektnummer: SI-K110
Kaufpreis: 13.990.000 € Wohnfläche: 2880 m² Zimmer:

Preise und Kosten

Kaufpreis
13.990.000 €
Käuferprovision
Denis Schwarz
02941 749 59 77
0162 49 388 48
info@si-lp.de

Lage und Umgebung

Das geplante Wohnprojekt befindet sich im dynamisch wachsenden Neubaugebiet im Soester Norden – einem Neubaugebiet mit hohem Entwicklungspotenzial und ausgezeichneter Infrastruktur. In direkter Nähe zu grünen Freiflächen und modernen Wohnquartieren entsteht hier ein neues, lebendiges Wohnumfeld, das ideal auf die Bedürfnisse verschiedenster Bevölkerungsgruppen abgestimmt ist.

Die Lage zeichnet sich durch eine hervorragende Erreichbarkeit und Nahversorgung aus: Supermärkte, Kitas, Schulen, medizinische Einrichtungen sowie Freizeit- und Sportangebote befinden sich in unmittelbarer Umgebung oder sind mit dem Fahrrad oder ÖPNV in wenigen Minuten erreichbar. Die Innenstadt von Soest mit ihrer historischen Altstadt, vielfältigen Einkaufsmöglichkeiten und gastronomischen Angeboten ist ebenfalls nur wenige Fahrminuten entfernt.

Dank der guten Anbindung an das überregionale Verkehrsnetz – darunter die B1 sowie die A44 – ist der Standort auch für Pendler äußerst attraktiv. Der Bahnhof Soest bietet zudem eine direkte Zugverbindung nach Dortmund, Paderborn und ins Ruhrgebiet.

Das Quartier im Soester Norden steht für moderne Urbanität im Grünen, kombiniert mit kurzen Wegen, nachhaltiger Entwicklung und einem hohen Maß an Lebensqualität – beste Voraussetzungen für ein generationenübergreifendes, zukunftssicheres Wohnprojekt.

Objektbeschreibung

Bei dem hier annoncierten Projekt handelt es sich um ein durchdachtes Wohnbaukonzept des renommierten Architekturbüros Ballhorn und Lempke Architekten aus Lippstadt. Der Entwurf wird als Gesamtprojekt inklusive Grundstück und kalkulierter Baukosten zum Verkauf angeboten und vereint gestalterische Qualität mit nachhaltiger Bauweise und einem flexiblen Nutzungskonzept.

Geplant ist ein Wohnprojekt mit vier identisch geschnittenen Gebäuden, die jeweils neun Wohneinheiten beherbergen – insgesamt 34 Wohnungen, alternativ 36 Einheiten bei Wegfall der optionalen Gewerbeflächen im Erdgeschoss. Die klar strukturierten, variabel nutzbaren Grundrisse sprechen ein breites Spektrum von Zielgruppen an: Studierende, Singles, Familien sowie Seniorinnen und Senioren. So entsteht eine generationenübergreifende, ausgewogene Nachbarschaft.

Das architektonische Konzept legt großen Wert auf Nachhaltigkeit, Barrierefreiheit und Wohnqualität. Neben der massiven Bauweise, einem durchgängigen Einsatz von umweltfreundlichen Materialien und einer harmonischen, hellen Gestaltung überzeugt das Projekt durch eine ganzheitlich gedachte Energieeffizienz: Photovoltaik, geothermische Energielösungen, Wärmepumpen, die Nutzung von Regenwasser sowie begrünte Dächer tragen aktiv zum Klima- und Umweltschutz bei.

Dieses innovative Konzept bietet eine attraktive Grundlage für Investoren, Bauträger oder Projektentwickler, die auf der Suche nach einer nachhaltigen und zukunftsfähigen Wohnlösung sind – von der Idee bis zur baureifen Planung.

Objektdaten

  • Etagenzahl: 3
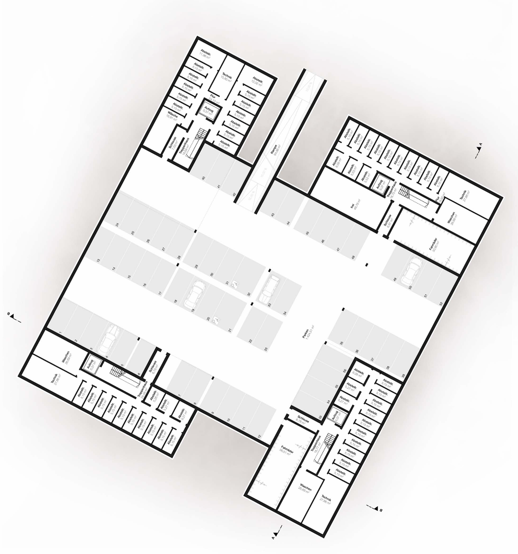
  • Anzahl Parkplätze: 56
  • Stellplatztyp: Tiefgarage
  • Qualität der Ausstattung: gehoben
  • Bodenbelag: Parkett
  • Personenaufzug: Ja
  • Barrierefrei: Ja
  • Keller: Ja
  • Gäste-WC: Ja
  • Balkon / Terrasse: Ja
  • Garten / -mitbenutzung: Ja
  • Abstellraum: Ja
  • Bad: Dusche, Wanne, Fenster
  • Preis / m²: 4.857,64
  • Gesamteinheiten: 36
  • Gewerbefläche ca.: 200 m²
  • Wohnfläche ca.: 2.880 m²
  • Gesamtfläche ca.: 2.880 m²

Ausstattung

Zustand

Anfrageformular

* Pflichtfelder

Jetzt Anfragen

Anfrage für weitere Informationen zur Immobilie, Besichtigungstermine und mehr

Kontakt

adobestock_452114243.jpeg
02941 749 59 77 0162 49 388 48 info@si-lp.de